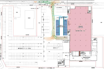
IDOM/神奈川県平塚市に「ガリバー平塚店」来年7/7新設 アスリート、小桜商事、今井商事は11月6日、大規模小売店舗立地法による新設の届出を行った。IDOMが... 流通ニュース | Fri, 12 Dec 2025 11:30:31 +0900 もっとよむ Pick Up 2024年03月07日 【新商品!】チュバチュバワンダーランドに新たなグッズが登場★ チバテレ+プラス ライフ
関連記事 2025年12月12日 成都市双流区:スマート製造を備えた航空ハブ、幸福な公園都市 共同通信 PR Wire NEW ビジネス 2025年12月12日 イヌを飼育する児童の幸福度の上昇には細菌叢の変化が関与 麻布大学などが検証 大学ジャーナルオンライン NEW ビジネス 2025年12月12日 「デンリュウの出島カステラプレート」&「デンリュウの長崎ランタンマグ」で長崎を感じるティータイムを! 共同通信 PR Wire NEW ビジネス 2025年12月12日 積水ハウス、CDP「気候変動」「フォレスト」「ウォーター」全分野最高の「Aリスト」 共同通信 PR Wire NEW ビジネス
新着ニュース 2025年12月12日 サンダーが怒濤の16連勝…シーズン最初の25試合でNBA歴代トップタイの24勝1敗に到達 BASKETBALLKING NEW スポーツ 2025年12月12日 「ミッチとピサノ!!」37歳&19歳“師弟コンビ”新旧守護神GKの約1年ぶりの再会ツーショット公開!「ミッチがお父さんみたい」「ぜひGKの真髄も受け取ってください!」 サッカー批評Web NEW スポーツ 2025年12月12日 「来たああああ」 発表されたセンバツ21世紀枠候補に驚き 42年ぶり聖地へ…伝統校が「激アツ」 THE ANSWER NEW スポーツ 2025年12月12日 中国で「不機嫌」だった張本智和が一変 試合後の一言にファン喝采、現地メディア「ついに…」 THE ANSWER NEW スポーツ